液壓油缸,工程油缸,泵車油缸,專用車油缸制造商-湖北佳恒科技有限公司

產品展示
自卸車油缸|泵車|隨車吊油缸|環衛車油缸|液壓系統|泵送系統|放大架總成|礦用液壓支柱|背罐車油缸|起重機油缸|
前置頂液壓油缸|中頂缸|伸縮式套筒液壓缸|雙作用液壓缸|
您現在所在的位置:首頁 > 產品中心 > 產品分類 > 自卸車油缸 > 中頂缸

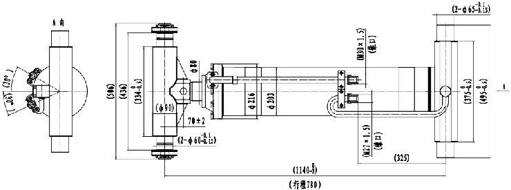
腹舉式--HG180系列

腹舉式--HG180系列
★新結構、技術成熟,舉升速度快,廣泛用于農用車、輕型自卸車
★產品性能可靠,系統壓力低,使用壽命長
★采用獨特的密封系統設計,有效的解決了漏油、干摩擦現象的發生 

外形安裝尺寸(括號內的尺寸表示可以根據廠家的要求進行更改)

腹舉式--HG220系列
腹舉式--HG200系列
腹舉式--HG180系列
腹舉式--HG160系列
腹舉式--TG110系列
湖北佳恒科技股份有限公司 | 版權所有 鄂ICP備17026771號-1 十堰網站建設 | 制作維護
地址:湖北省十堰市高新區天馬大道387號 電話:400-885-7266 0719-7590366 7590668
--相關友情鏈接--
十堰網站建設
三一重工